物件詳細
コープふくしま方木田店まで徒歩2分!駐車4台可能!
中古住宅福島市方木田字水口8-1 (5-4、5-12、34-2、35-3)
価格 3450万円
お気に入りに追加
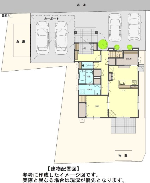
| 土地面積 | 285.03m2(公簿)/86.22坪 | 建物面積 | 143.75m2/43.48坪 |
|---|---|---|---|
| 築年月 | 2009年11月 | 間取 | 5LDK |
最終更新日 2026.03.14
お問い合わせをする
※物件位置が表示されていない場合もあります。
正確な位置は取り扱い会社へお問い合わせください。
| 所在地 | 福島市方木田字水口8-1 (5-4、5-12、34-2、35-3) | 建物名 | |
|---|---|---|---|
| 価格 | 3450万円 | ||
| 土地面積 | 285.03m2(公簿)/86.22坪 | 建物面積 | 143.75m2/43.48坪 |
| 間取 | 5LDK | 構造 | 2×4 |
| 建物概要 | 地上2階 | ||
| 完成年月 | 2009年11月 | ||
| 湯権 | 下水 | 公共下水道 | |
| 通学区 | 吉井田小学校(1700m) 福島第一中学校(2000m) | ||
| 設備 | トイレ2箇所・暖房便座・バス1坪以上・システムキッチン・IHクッキングヒーター・食器洗浄乾燥機・給湯・洗髪洗面化粧台・照明器具付き・複層ガラス・上水道・下水道・電気・TVモニタ付きインターホン・火災警報器(報知機)・ウォークインクローゼット・外物置・庭・バルコニー・駐車場3台分・日当り良好・24時間換気システム・オール電化・建築確認完了検査済証 | ||
| 駐車場 | 有 台数:4台可 | ||
| 交通 | 電車:東北新幹線福島駅 2600m 徒歩33分 自動車6分 バス:福島交通線丑子内バス停 495m 徒歩7分 最寄り駅までバス乗車23分 高速道路:東北自動車道福島西I.C. 車4分 | ||
| 都市計画法 | 市街化区域 | 用途地域 | 準住居 |
| 建ぺい率 | 60% | 容積率 | 200% |
| 取引態様 | 専任媒介 | ||
| 手数料 | 要 | ||
| 引渡し/入居日 | 相談 | ||
| 物件番号 | 25A0285 | ||
| システム番号 | 378060 | ||
| 最終更新日 | 2026-03-14 | ||
東北ミサワホーム株式会社福島支店
024-554-1211| 所在地 | 〒960-0102 福島県福島市鎌田字舟戸前16-3 | ||
|---|---|---|---|
| 免許番号 | 国土交通大臣免許(9)第3827号 | ||
| 業務時間 | 09:00〜18:00 | 休日 | 火曜、水曜、第一日曜 |
| 電話 | 024-554-1211 | FAX | 024-554-4555 |
資料請求&お問合せ
- 1 情報のご入力
- 2 入力内容のご確認
- 3 操作完了








































