物件詳細
中古住宅UP福島市大森字鶴巻78-25
価格 1100万円
お気に入りに追加
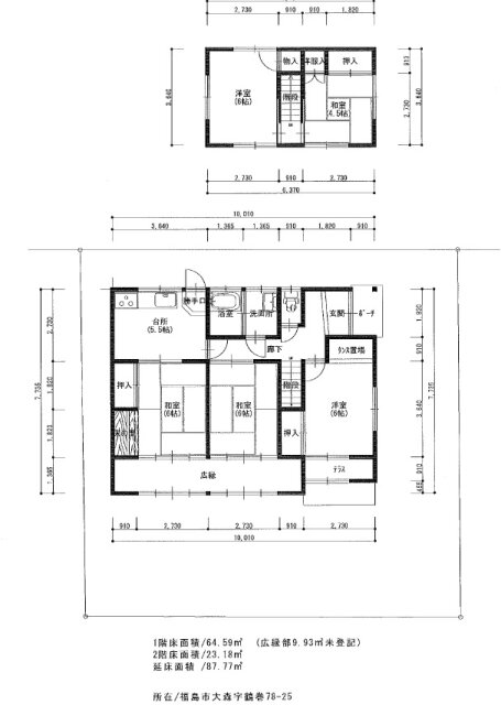
| 土地面積 | 200.2m2(公簿)/60.56坪 | 建物面積 | 97.7m2/29.55坪 |
|---|---|---|---|
| 築年月 | 1979年12月 | 間取 | 5DK |
最終更新日 2025.11.14
お問い合わせをする
※物件位置が表示されていない場合もあります。
正確な位置は取り扱い会社へお問い合わせください。
| 所在地 | 福島市大森字鶴巻78-25 | 建物名 | |
|---|---|---|---|
| 価格 | 1100万円 | ||
| 土地面積 | 200.2m2(公簿)/60.56坪 | 建物面積 | 97.7m2/29.55坪 |
| 間取 | 5DK | 構造 | 木造 |
| 詳細間取 | 和 6・6・4.5 洋 6・6 | ||
| 建物概要 | 地上2階 | ||
| 完成年月 | 1979年12月 | ||
| 湯権 | 下水 | 公共下水道 | |
| 通学区 | 福島市立大森小学校(1579m) 福島市立信夫中学校(2395m) | ||
| 設備 | BT別室・温水洗浄便座・暖房便座・給湯・洗髪洗面化粧台・上水道・下水道・側溝・電気・エアコン・外物置・庭・駐車場2台分・日当り良好・閑静住宅街 | ||
| 駐車場 | 有 台数:2台可 | ||
| 交通 | 電車:東北本線南福島駅 1600m 徒歩21分 自動車6分 バス:福島交通バス線石田バス停 615m 徒歩8分 最寄り駅までバス乗車8分 高速道路:東北自動車道福島西I.C. 車11分 | ||
| 都市計画法 | 市街化区域 | 用途地域 | 1種住居 |
| 建ぺい率 | 60% | 容積率 | 200% |
| 取引態様 | 専任媒介 | ||
| 引渡し/入居日 | 相談 | ||
| 物件番号 | 25A0267 | ||
| システム番号 | 378045 | ||
| 最終更新日 | 2025-11-14 | ||
資料請求&お問合せ
- 1 情報のご入力
- 2 入力内容のご確認
- 3 操作完了










